Description
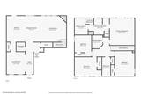
This exceptionally maintained traditional home offers the perfect combination of style, comfort, and location, all within a highly sought-after community zoned for top-rated Forsyth County schools. The exterior showcases timeless curb appeal with brick construction, cedar shaker accents, a covered front porch, and a two-car garage. Inside, the foyer opens to a formal dining room accented with classic wainscoting, flowing effortlessly into the open-concept main living area designed for both everyday living and entertaining. Family room features a floor-to-ceiling shiplap fireplace, while the adjoining eat-in kitchen is thoughtfully appointed with quartz countertops, a large island with breakfast bar, beveled subway tile backsplash, farmhouse sink, and pantry showcased by stylish pendant lighting. A convenient half bath on the main level. Upstairs, the primary suite is complete with tray ceilings, a spa-inspired bath featuring a double vanity, garden tub, beautifully tiled walk-in shower, and a custom closet system designed for optimal organization. Three generously sized secondary bedrooms, an additional full bath, and an easily accessible laundry room. The patio overlooks a wooded backdrop, providing privacy and a peaceful setting. The backyard offers a true blank canvas to design the outdoor space you enjoy. Residents have access to outstanding community amenities, including a pool, playground, and fire pit area, along with the added benefit of access to nearby Grandview Manor’s amenities. Conveniently located near schools, shopping, dining, entertainment, and major highways for an easy commute. This home delivers exceptional value in an unbeatable location! Ask about the free appraisal and up to 2k in lender credit with preferred lender.
-
4BEDS
-
0.24ACRES
-
2BATHS
-
11/2 BATHS
-
2,264SQFT
-
$210$/SQFT
School Information
Description
This exceptionally maintained traditional home offers the perfect combination of style, comfort, and location, all within a highly sought-after community zoned for top-rated Forsyth County schools. The exterior showcases timeless curb appeal with brick construction, cedar shaker accents, a covered front porch, and a two-car garage. Inside, the foyer opens to a formal dining room accented with classic wainscoting, flowing effortlessly into the open-concept main living area designed for both everyday living and entertaining. Family room features a floor-to-ceiling shiplap fireplace, while the adjoining eat-in kitchen is thoughtfully appointed with quartz countertops, a large island with breakfast bar, beveled subway tile backsplash, farmhouse sink, and pantry showcased by stylish pendant lighting. A convenient half bath on the main level. Upstairs, the primary suite is complete with tray ceilings, a spa-inspired bath featuring a double vanity, garden tub, beautifully tiled walk-in shower, and a custom closet system designed for optimal organization. Three generously sized secondary bedrooms, an additional full bath, and an easily accessible laundry room. The patio overlooks a wooded backdrop, providing privacy and a peaceful setting. The backyard offers a true blank canvas to design the outdoor space you enjoy. Residents have access to outstanding community amenities, including a pool, playground, and fire pit area, along with the added benefit of access to nearby Grandview Manor’s amenities. Conveniently located near schools, shopping, dining, entertainment, and major highways for an easy commute. This home delivers exceptional value in an unbeatable location! Ask about the free appraisal and up to 2k in lender credit with preferred lender.
Related Properties
Listings identified with the FMLS IDX logo come from FMLS, are held by brokerage firms other than the owner of this website and the listing brokerage is identified in any listing details. Information is deemed reliable but is not guaranteed.
If you believe any FMLS listing contains material that infringes your copyrighted work, please click here to review our DMCA policy and learn how to submit a takedown request.
© 2026 First Multiple Listing Service, Inc. Data last updated 2026-04-15T21:05:04.863. For issues regarding this website, please contact BoomTown.
